
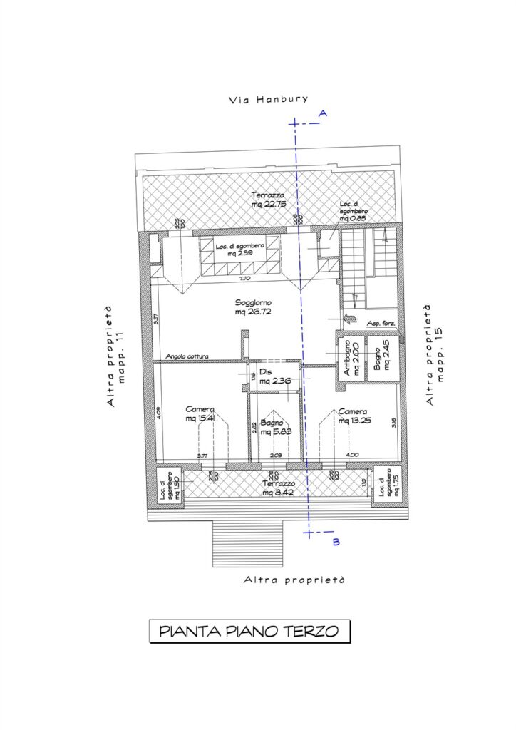
ESCLUSIVA RIVIERA SERVICES – Al terzo ed ultimo piano senza ascensore di una palazzina Liberty nel centro di Alassio, proponiamo una mansarda completamente da realizzare con spese a carico dell’acquirente.
Il progetto prevede due camere matrimoniali con terrazzo dedicato, doppi servizi ed una piacevole zona giorno ben divisa tra sala da pranzo e living con affaccio su una terrazza vivibile di ampia metratura.
Bella opportunità per chi desidera personalizzare la propria abitazione.
Nel prezzo sono inclusi i costi di progettazione e gli oneri urbanistici.
Possibilità affitto di box auto in zona.